Enviar imóvel a amigo
Saber mais »
captcha
Campos obrigatórios *

Apartamento T3 com terraço, estacionamento duplo, em construção, Arca D´água, Paranhos

549 900 €
Seguir imóvel Receba um alerta quando existir uma Baixa de Preço
Nome
Insira o código da imagem
captcha
Código
3
100 m²
136 m²
Apartamento T3 com varanda, estacionamento duplo, em construção, Arca D'água, Paranhos

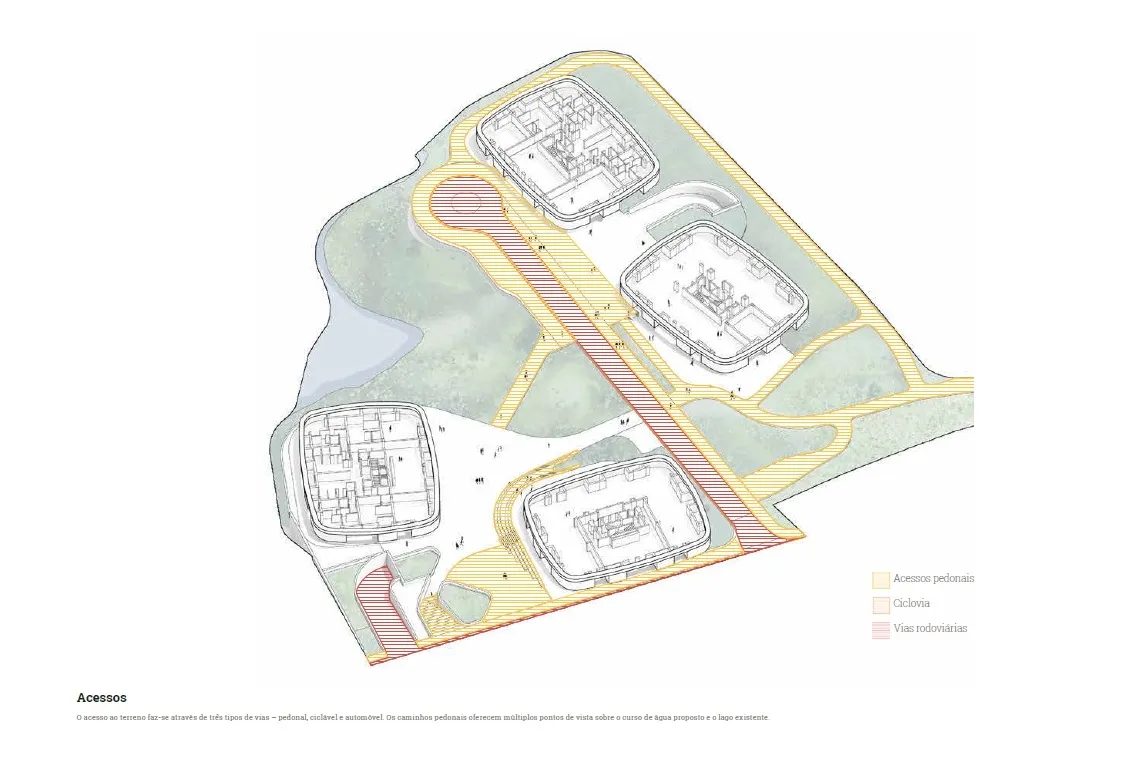
O LAKE TOWERS é o mais recente empreendimento residencial a surgir em Arca d’Água, no antigo Campo do Salgueiros, uma das zonas em maior transformação e valorização no Porto. Concebido para responder às novas dinâmicas da vida urbana, o projeto destaca-se pela localização estratégica, pela eficiência dos espaços e pela integração harmoniosa entre cidade e natureza.
O empreendimento oferece uma ampla variedade de tipologias, incluindo T1 Smart, T2 e T3, todas totalmente equipadas e cuidadosamente desenhadas para proporcionar conforto, funcionalidade e qualidade de vida. Os interiores privilegiam a luminosidade natural, a organização inteligente dos espaços e materiais que garantem durabilidade e bem-estar.
Situado num ponto privilegiado da cidade, o LAKE TOWERS beneficia de excelentes acessos, proximidade a serviços essenciais, zonas comerciais, áreas verdes e equipamentos educativos. É uma resposta atual às necessidades do mercado, oferecendo habitação moderna, bem localizada e com valores ajustados à capacidade de compra de famílias e jovens.
O LAKE TOWERS representa uma oportunidade sólida de investimento e uma escolha segura para quem procura viver num ambiente urbano dinâmico, equilibrado e com grande potencial de valorização futura.
Interessado no Imóvel?
Data
Hora
Nome
Contacto
Mensagem
captcha
Código
Tipo de imóvel Apartamento
Tipologia 3 Quartos
Objetivo Venda
Estado N/D
Preço 549 900 €
Ano Construção 2025
País Portugal
Distrito Porto
Concelho Porto
Freguesia Paranhos
Zona N/D

Simulador de Crédito
Simulador de IMT
Valor do imóvel*
Montante de Empréstimo*
A sua idade*
Prazo empréstimo *
Prestação Mensal 0.00
O valor da prestação apresentada não inclui Seguro de Vida e Seguro Lar.
Indexante 0.000%
TAEG 0.000%
Spread 0.000%
Prazo 0 anos
TAN 0.000%
Simular Inserir aqui o disclaimer. Isto é apenas uma simulação. Esta simulação de crédito não tem fins lucrativos.
Local do imóvel*
Finalidade*
Valor do imóvel*
Valores complementares*
IMT 0.00
Imposto de Selo (0,8%) 0.00
Valores complementares 0.00
Total a pagar 0.00
Mais informações Simular Inserir aqui o disclaimer. Isto é apenas uma simulação. Esta simulação de crédito não tem fins lucrativos. Dados de Intermediação de Crédito - (Intermediário de Crédito nº )
Características Gerais
Gerais
  •  
Divisões
Divisões Área Pavimento Paredes Tectos Observações
 
Meio Envolvente
  •  
Facilidades
  •  
Domótica
  •  
Energias Renováveis
  •  
Estamos disponíveis para o ajudar Pretendo ser contactado
Data
Hora
Nome
Contacto
Mensagem
captcha
Código
O que é a pesquisa responsável
Esta pesquisa permite obter resultados mais ajustados à sua disponibilidade financeira.